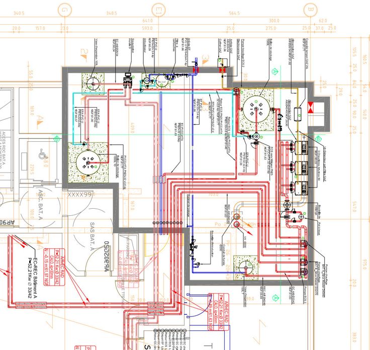
Mechanical & Electrical Plans

At Zava Consult, we design mechanical and electrical systems that enhance efficiency, functionality, and safety in every project. Whether for residential, commercial, or industrial developments, our expert team ensures seamless integration of essential building systems, optimizing performance while adhering to industry standards.

Mechanical Systems Design

We provide customized mechanical solutions to ensure comfort, efficiency, and sustainability, including:

Mechanical Systems
  • HVAC Systems – Heating, ventilation, and air conditioning for optimal indoor climate control.
  • Plumbing & Water Systems – Efficient water supply, drainage, and sanitation solutions.
  • Fire Protection Systems – Fire suppression, sprinklers, and emergency response systems.
  • Elevators & Escalators – Safe and reliable vertical transportation solutions.

Electrical Systems Design

Our electrical planning ensures safe and efficient power distribution, covering:

Electrical Systems
  • Power Supply & Distribution – Designing reliable electrical layouts for buildings.
  • Lighting Systems – Energy-efficient and aesthetically optimized lighting solutions.
  • Backup Power & Renewable Energy – Integration of generators, solar panels, and UPS systems.
  • Security & Communication Systems – CCTV, access control, and structured cabling solutions.

At Zava Consult, we take a holistic approach to mechanical and electrical planning, ensuring every system functions flawlessly within the overall design.

Get in touch with us today to discuss your project’s M&E requirements!